プラン特集
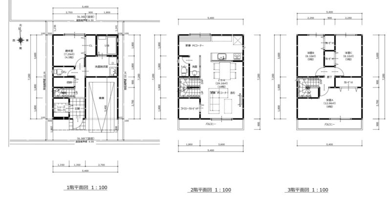
3階建て3LDKSプラン
この3LDKSプランは、4人家族向けに設計されています。1階には、ゲストルームやオフィススペースとして使用できる多目的な収納室があります。また、大きなシューズクローゼット、洗面所と隣接したバスルームがあり、物件内に車を駐車するスペースも確保されています。
2階には、オープンプランのLDKがあり、キッチンがリビングとダイニングエリアと一体化して家族のつながりを促進します。大きな朝食カウンターがあり、家族の食事や子供たちの宿題の場所として最適です。さらに、リビングエリアからアクセスできる収納棚もあり、子供たちのおもちゃを整理整頓するのに便利です。
3階には、子供たちのための十分な収納スペースを備えた2つの広めのベッドルームと、マスターベッドルームがあります。マスターベッドルームには広い収納スペースとバルコニーへのアクセスもあります。
弊社では「地域密着・お客様至上主義」をモットーに大阪で新築住宅の販売をメインに行っております。
もちろん大阪だけでなく関西全域可能な限りご対応させていただきますので、一度ご相談くださいませ。
物件情報だけでなく、資金のご相談、プラン例など家創りに関するご相談はどんなことでも詳しくご説明させていただきます。
ぜひお気軽にお問い合わせください。




