プラン特集
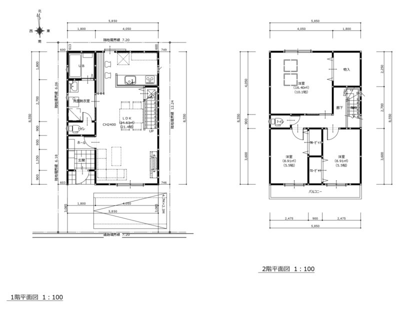
2階建て3LDK間取り
この3LDKの間取りは、4人家族が快適に暮らせるように設計されています。前面には大きな車を駐車できるスペースがあります。1階には広々とした洗面所と併設のバスルームがあります。LDKエリアは、家族が一緒に過ごしやすいように設計されており、朝食カウンターは食事にも、子どもたちが宿題をする場所にも適しています。
2階には、広々とした3つの寝室があり、それぞれに十分な収納スペースがあります。子どもたちの寝室にはバルコニーへのアクセスもあり、追加の屋外スペースを提供します。さらに、2階にはトイレも設置されているため、階下に行く必要がありません。
弊社では「地域密着・お客様至上主義」をモットーに大阪で新築住宅の販売をメインに行っております。
もちろん大阪だけでなく関西全域可能な限りご対応させていただきますので、一度ご相談くださいませ。
物件情報だけでなく、資金のご相談、プラン例など家創りに関するご相談はどんなことでも詳しくご説明させていただきます。
ぜひお気軽にお問い合わせください。




